



Capital Equities acquired this early-1900s South Norwalk property in 2012 and completed a full renovation by Spring 2015, blending historic preservation with modern function across both retail and office space.
Originally built in the early 1900s
Acquired by Capital Equities Group in 2012
Comprehensive renovation completed in Spring 2015
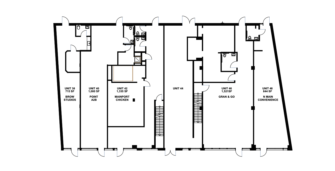
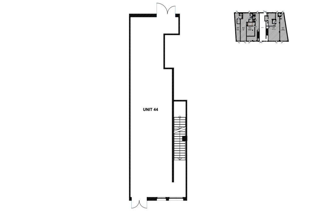
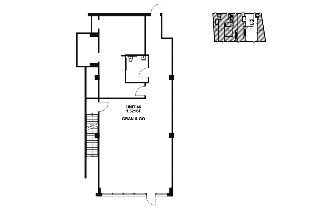
Ground floor features a mix of shops and restaurants serving the local community
Second floor includes modern office suites, including a custom-built space for an award-winning architecture firm
Renovation maintained architectural integrity while improving usability
Rear entryways upgraded with a landscaped courtyard-style “backyard” connecting to the adjacent parking area
Use: Mixed-Use (Ground Floor Retail + Second Floor Offices)
Stories: 2
Total Building Size: 21,200 SF
Typical Floor Size: 12,000 SF
Construction: Wood & Masonry
Built: Early 1900s
Renovated: Spring 2015
Located in the heart of South Norwalk (SoNo), Norwalk’s premier business and entertainment district
Directly across from the Webster Street Parking Lot – ample and convenient parking
Steps from the South Norwalk Metro-North Station – express service to NYC
Surrounded by top-tier restaurants and nightlife: Washington Prime, Mecha Noodle Bar, The Spread
Walking distance to The Maritime Aquarium at Norwalk and AMC SoNo 8 movie theater
Minutes to I-95 and Route 7 for quick regional access
Near Constitution Park and Norwalk Harbor, offering scenic riverfront atmosphere
Close to boutique shops, cafes, and the SoNo Collection Mall
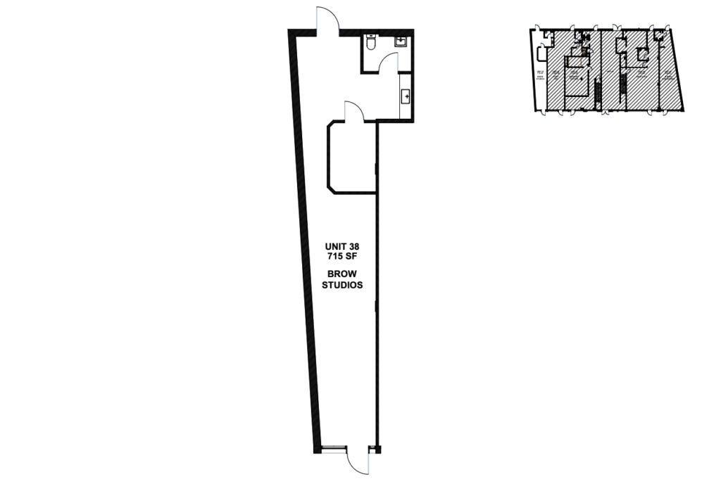
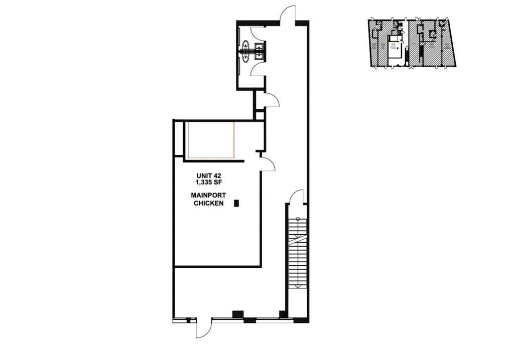
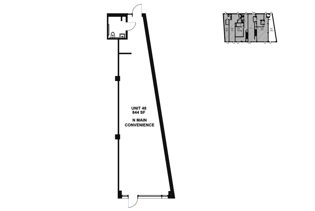
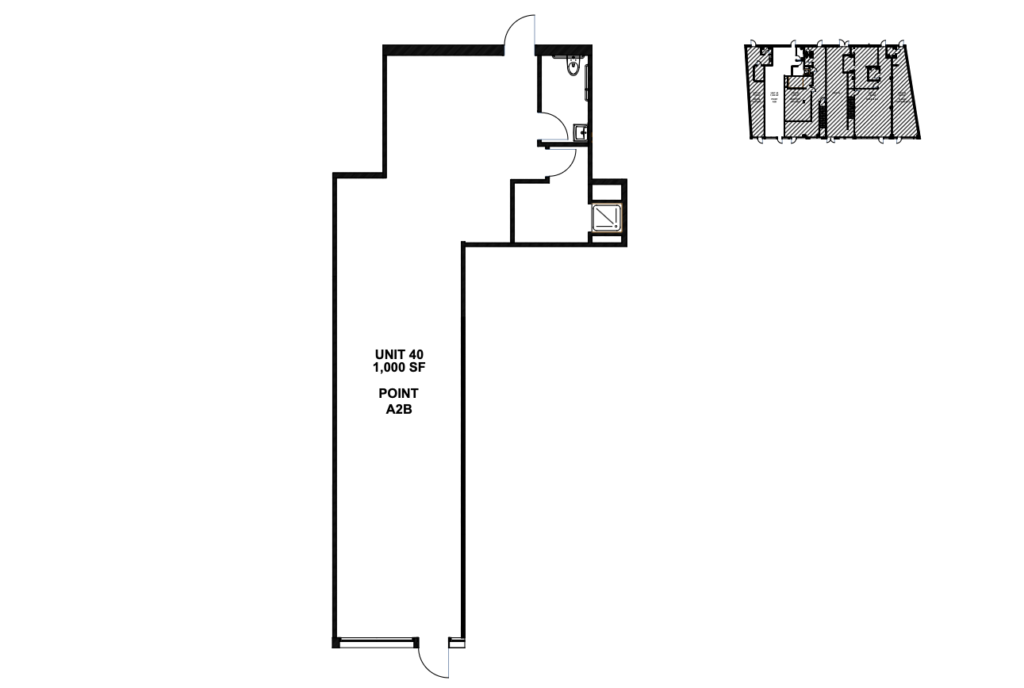
38-48 North Main Street Norwalk, CT
Connecticut
United States
1st Floor Shops & Restaurants, 2nd Floor Offices
12,000 sq ft.
Wood & Masonry Construction
21,200 sq ft.
Compare listings
ComparePlease enter your username or email address. You will receive a link to create a new password via email.